Volver al inicio

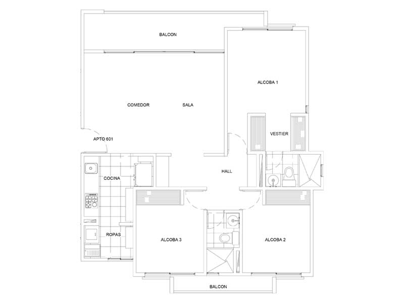
Ladera de la Campiña apto 601


Detalles del inmueble:

Area: 98m2
Patio de Ropas: Si
Depósito: No
Sala Comedor: Si
Baños: 2
Parqueadero: 2
Estudio: Si
Alcobas: 3
Cocina Integral: Si
Balcones: 2



GALERIA Ladera de la Campiña apto 601




Caracteristicas del apartamento:

 Amplio closet de lino
 Doble fachada
 Zona campestre
 Óptima orientación al sol
 Óptima orientación al sol y circulación del aire



Caracteristicas del conjunto:

 Circuito cerrado de T.V
 Vigilancia
 Piscina
 Administración
 Parques infantiles
 Zona BBQ
 Jardines
 Ascensor
 Salón social
 Aseo
 Cancha multiple



Ubicación:




Contáctanos:

mysdoor.com es la puerta de entrada a tu tranquilidad cuando realices cualquier negocio inmobiliario.